a

Майбутнє має адресу

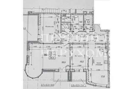
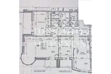
3-кімнатна квартира, 97.00 кв.м.

110000 у.о.

ID 130824
Розташування Гагарінське плато (Аркадійське плато), Приморський
Загальна, кв.м. 97.00
Жила/Кухня, кв.м. 50.00/17.00
Поверх 8 /24
Висота стелі, м. 3.00
Стан нерухомості від будівельників
Опалення дахова котельня

Квартира в Аркадії у новому зданому будинку від СК "Стікон". Висока якість будівництва, красивий практичний фасад, прекрасне розташування будинку - зовсім поряд парк море та пляжі Аркадії! Відмінне планування квартири: простора кухня порадує будь-яку господиню, вітальня, дві спальні, два санвузли, вбиральня. балкон, дві лоджії та еркер. Окремо є можливість придбати паркінг (15000 дол.) та комору 13 кв.м. (10000 дол.)

Автономія

Генератор

Автономне опалення

Безперебійна робота ліфтів

Бомбосховище

Безпека

Закрита територія

Територія, що охороняється

(067) 476-52-14

Отримати консультацію

(067) 476-52-14