Майбутнє має адресу
87000 у.о. |
|||
|---|---|---|---|
| ID | 950 | ||
| Розташування | 36-Лінія вул., Суворовський | ||
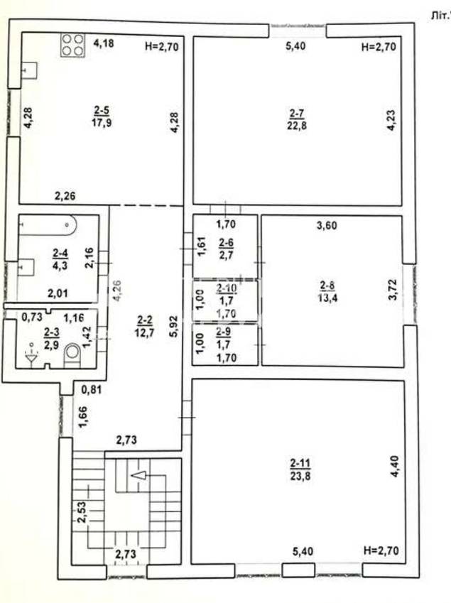
| Загальна, кв.м. | 240.00 | ||
| Жила/Кухня, кв.м. | 110.00/17.00 | ||
| Поверхів | 2 | ||
| Висота стелі, м. | 2.80 | ||
| Стан нерухомості | з ремонтом | ||
| Опалення | АОГВ | ||
Пропонується до продажу будинок на селищі Шевченка 3. Два повністю роздільні поверхи, Два входи в будинок, два двоконтурні котли, прилади обліку, центральна каналізація. Двір на кілька машин. Гараж. Ділянка 6,5 соток землі. У пішій доступності магазин, електричка, ринок, супермаркети та магазини по вул. Марсельська.
Отримати консультацію