Майбутнє має адресу
1870000 у.о. |
|||
|---|---|---|---|
| ID | 844 | ||
| Розташування | Берегова вул., Овідіопольський | ||
| Загальна, кв.м. | 1440.00 | ||
| Жила/Кухня, кв.м. | 180.00/50.00 | ||
| Поверхів | 3 | ||
| Висота стелі, м. | 3.00 | ||
| Стан нерухомості | від будівельників | ||
| Опалення | електро | ||
Будинок з видом на море, в Совіньйон-4.
Цоколь 260 м2
1 поверх-595,7 м2
2 поверх-292,7 м2
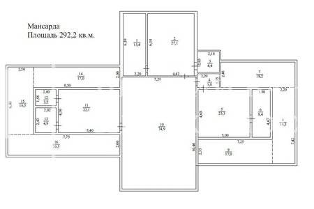
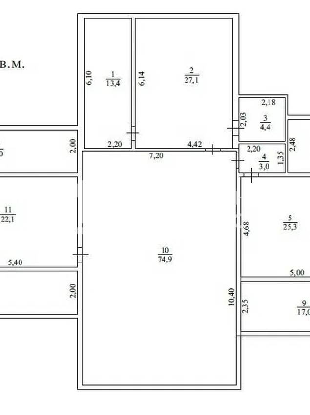
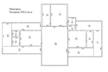
Мансарда 292м
Всього: 1440 м2
Ділянка у приватній власності - 20 соток (дві ділянки)
Будинок 2013 року.
Комунікації:
Газ – є.
Міська вода – є.
Міська каналізація – є.
Електрика має 3 фази 30 кВт.
Один власник.
Будівля збудована з дорогих будматеріалів.
Високі стелі - 3м.
Цегляні стіни 50 див.
Будинок зданий в експлуатацію, який підходить для великої дружної родини, для приватної школи з садком, для салону краси, для будинку для людей похилого віку. Совіньйон – територія з патрульною охороною, широкими дорогами, біля моря.
Отримати консультацію