Майбутнє має адресу
185000 у.о. |
|||
|---|---|---|---|
| ID | 829 | ||
| Розташування | Гумільова Миколи вул., Київський | ||
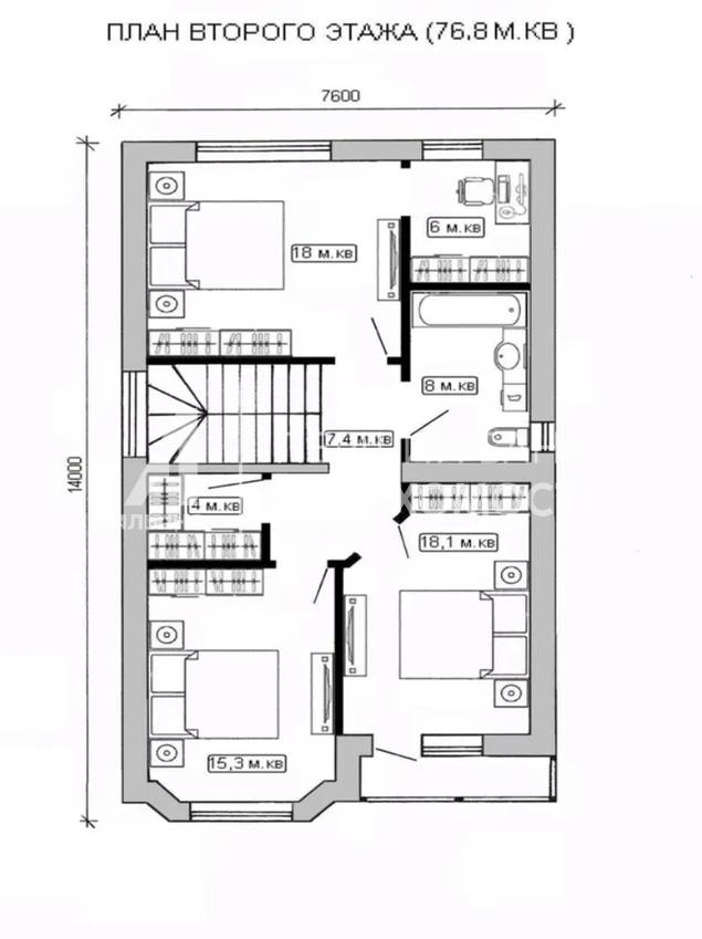
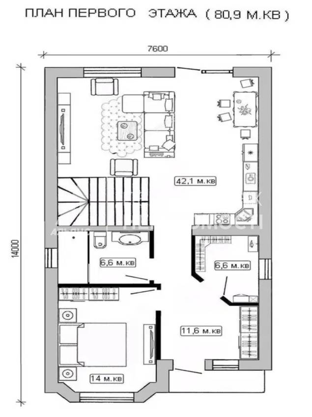
| Загальна, кв.м. | 160.00 | ||
| Жила/Кухня, кв.м. | 120.00/35.00 | ||
| Поверхів | 2 | ||
| Висота стелі, м. | 3.00 | ||
| Стан нерухомості | від будівельників | ||
| Опалення | АОГВ | ||
У продажу новий будинок з ремонтом на ділянці 3,5 сотів.
Загальна площа 160 м2, 2 поверхи.
Матеріал будівництва газоблоку. Покрівля – металочерепиця.
Опалення - 2-ох контурний газовий котел.
Комунікації: центральна каналізація, електроенергія, газ, центральний водопровід.
Інфраструктура
Телефонуйте, із задоволенням організую показ цього будинку!
Отримати консультацію