Майбутнє має адресу
255000 у.о. |
|||
|---|---|---|---|
| ID | 794 | ||
| Розташування | Єнісейська вул., Київський | ||
| Загальна, кв.м. | 145.00 | ||
| Жила/Кухня, кв.м. | 52.00/30.00 | ||
| Поверхів | 2 | ||
| Висота стелі, м. | 3.00 | ||
| Стан нерухомості | від будівельників | ||
| Опалення | АОГВ | ||
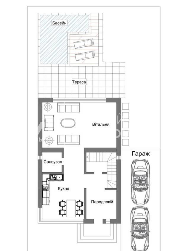
У продажу будинок у районі 9 станції Люстдорфської дороги.
Двоповерховий котедж у стилі хайтек у престижній локації!
Площа – 145 кв.м.
Ділянка – 3 сотки.
Будинок із червоної цегли, монолітне перекриття, утеплення базальтовою ватою, велика панорама, вільне планування.
Комунікації: газ, електрика 17 кВт, вода, каналізація. Гараж на дві машини.
Басейн, лаунж зона, газон.
Додатково можна замовити бомбосховища або артезіанську свердловину.
Є розстрочка без%!
Телефонуйте вже, подивимося сьогодні)
Отримати консультацію