Майбутнє має адресу
670000 у.о. |
|||
|---|---|---|---|
| ID | 540 | ||
| Розташування | Недєліна вул. (Анатолія Бачинського вул.), Приморський | ||
| Загальна, кв.м. | 370.00 | ||
| Жила/Кухня, кв.м. | 270.00/37.00 | ||
| Поверхів | 2 | ||
| Висота стелі, м. | 3.00 | ||
| Стан нерухомості | з ремонтом | ||
| Опалення | АОГВ | ||
Новий чудовий будинок з ремонтом. (2021р.)
7-Ст. Великого Фонтану.
Рідкісна пропозиція!
Побудований з використанням сучасних технологій із найкращих матеріалів! Утеплений.
Все продумано до дрібниць, зроблено з коханням.
Будували для себе, не заощаджували!
Будинок розташований на ділянці 6 соток. правильної форми
У Тихому провулку!
У трьох рівнях загальною площею 370м2 (житлова 270м2. + Гараж на Три авто 100м2)
-системи тепла підлога
-кондиціонери
-Вікна з броньованими склопакетами (Тріплекс)
-Двері ясен
-дах німецький Керамічна черепиця Braas
-широкі дубові сходи
-Конденсаційний кател Vaillant
-встановлена сигналізація та відеоспостереження
-автоматичні ворота Алютех
-Зона барбекю
На першому поверсі
-Прихожа, хол.
-Майстер-спальна з гардеробною.
-Кухня з виходом на терасу.
-вітальня з еркером.
-Сауна з кімнатою для відпочинку.
-ванна кімната
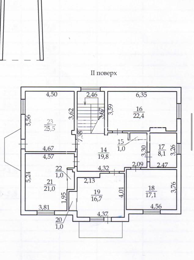
Другий поверх
-Три спальні (Дві з балконом)
-Спортзал.
-Кабінет.
-ванна кімната
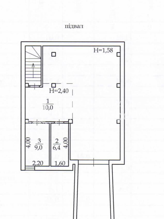
Підвал 100м2
-котельня
-Гос. Кімната
-гараж на три авто
Мансарда 100м2
Тихий провулок вулицею
Тиждень 7ст. Б.Фонтану
До Аркадії 15хв. Пішки.
Пристойні сусіди.
Продаж у зв'язку із переїздом.
Отримати консультацію