Майбутнє має адресу
260000 у.о. |
|||
|---|---|---|---|
| ID | 1613 | ||
| Розташування | Авдєєва-Чорноморського вул. (Плієва Генерала вул.), Київський | ||
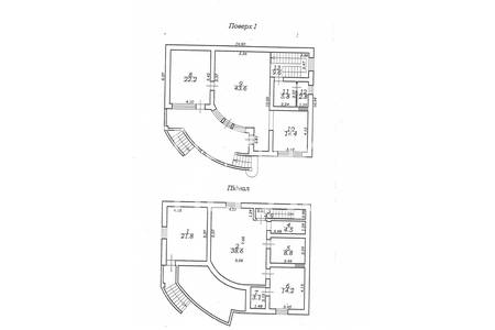
| Загальна, кв.м. | 359.00 | ||
| Жила/Кухня, кв.м. | 80.00/16.00 | ||
| Поверхів | 2 | ||
| Висота стелі, м. | 3.00 | ||
| Стан нерухомості | від будівельників | ||
| Опалення | АОГВ | ||
У продажу будинок на вул. Авдєєва-Чорноморського розташований на 5 сотках землі, загальною площею 359 м.кв, 2 поверхи і 3 ет мансарда, на першому поверсі кухня 14.4 м.кв, кімната 17м.кв і велика вітальня 30 м.кв, на другому поверсі три бали, на другому поверсі три бали, третій поверх мансарда може використовуватись як житлове приміщення, є розведення опалення, встановлений радіатор. Опалення у будинку АОГВ, у кімнатах встановлені радіатори, стан від будівельників, є мінус перший поверх під усім будинком, можна використовувати як притулок, планувалася як більярдна вхід з будинку. Будинок збудований перший поверх з черепашника 2 і 3 пов з червоної цегли, встановлені гарні вікна, трифазний лічильник. Прекрасне місце розташування будинку, престижний район.
Отримати консультацію