a

Майбутнє має адресу

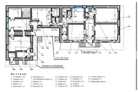
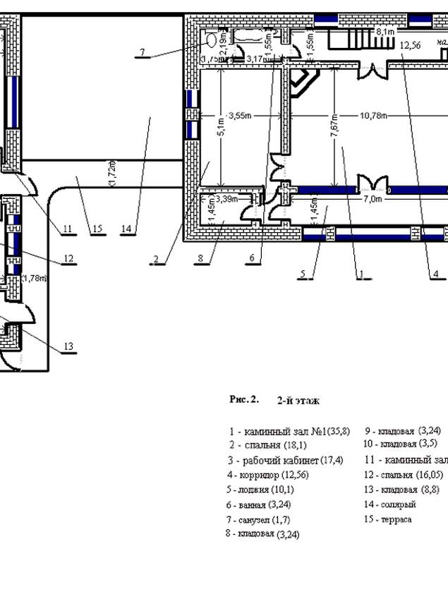
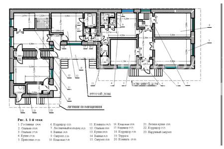
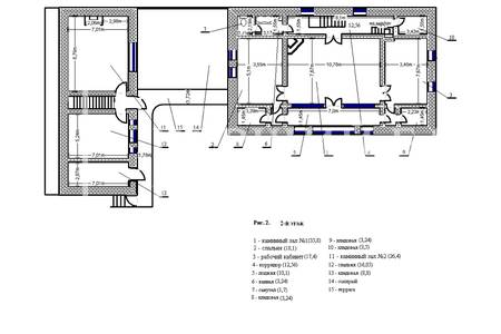
5-кімнатний дім, 535.00 кв.м.

135000 у.о.

ID 1594
Розташування Очеретова, Київський
Загальна, кв.м. 535.00
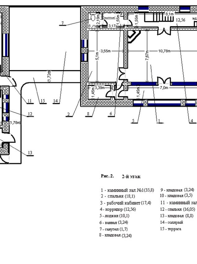
Жила/Кухня, кв.м. 258.00/42.00
Поверхів 2
Висота стелі, м. 3.00
Стан нерухомості з ремонтом
Опалення АОГВ

Просторий цегляний будинок із ділянкою 10 соток у приморській Чорноморці.

  • Загальна площа будинку: 535 м²

  • Житлова площа: 258 м²

  • Площа ділянки: 10 соток (50×20 м)

  • Район: м. Одеса, Київський район, сел. Чорноморка


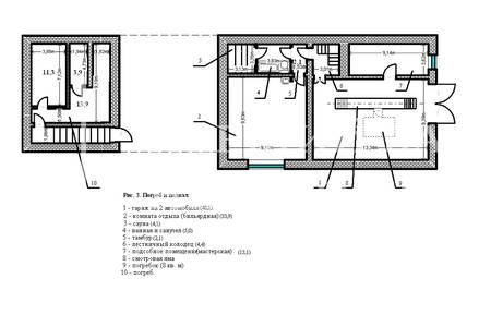
Солідний двоповерховий цегляний будинок 2000-х років побудови. До будівлі додається просторий підвал з гаражем на 2-3 автомобілі, обладнаним оглядовою ямою, і велике горище, що надає додаткові можливості для планування.

Всі центральні комунікації підведені та готові до використання:

  • Електрика: 380 В (3 фази)

  • Водопровід

  • Опалення: газовий котел

  • Криниця на ділянці

Планування та площі:

  • Житлова площа: 258 м²

  • Кухня: 42 м² (ідеально для великої родини чи комерційного використання)

  • Спільне планування дозволяє зонувати простір для окремого проживання.

Земельна ділянка:
Доглянута ділянка розміром 10 соток. На території розташовані:

  • Триповерховий сарай для зберігання чи господарських потреб

  • Дві теплиці

  • Невеликий город

  • Колодязь

Ідеальний варіант як для просторого сімейного гнізда, так прибуткового бізнесу. Готові рішення для відкриття гостьового будинку, готелю, автосервісу (СТО), майстерень чи інших підприємств.

Піша доступність до моря. Район відрізняється розвиненою інфраструктурою: за 700 метрів знаходяться магазини, кафе, пошта та аптека.

Зупинка громадського транспорту (трамвай та маршрутне таксі №220 до залізничного вокзалу Одеси) знаходиться лише за 500 метрів від будинку.

Зв'яжіться, щоб переглянути та обговорити деталі.

(067) 522-58-95

Отримати консультацію

(067) 522-58-95