Майбутнє має адресу
34200 у.о. |
|||
|---|---|---|---|
| ID | 1484 | ||
| Розташування | Коровицького Професора вул. (Коровицького вул.), Малиновський | ||
| Загальна, кв.м. | 45.00 | ||
| Жила/Кухня, кв.м. | 60.00/28.00 | ||
| Поверхів | 2 | ||
| Висота стелі, м. | 3.00 | ||
| Стан нерухомості | від будівельників | ||
| Опалення | АОГВ | ||
Продається таунхаус в Одесі!
Пропонуємо доступне та комфортне житло для всіх за доступною ціною та з найкращими умовами придбання!
Опис:
Продається двоповерховий таунхаус площею 460 м² у закритому комплексі з паркувальним місцем та ділянкою.
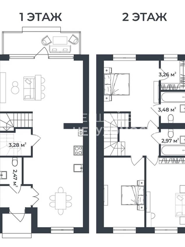
Перший поверх:
- Кухня-їдальня з виходом на простору терасну зону
- Передпокій
- Санвузол
Другий поверх:
- Дві спальні
Особливості:
- Система опалення: ОАГВ
- Закрита територія з паркувальним місцем
Розташування:
- Район Слобідка
- У 14 хвилинах від ринку Привіз
- За 10 хвилин від центру міста
Умови придбання:
- Можливість покупки на виплат без подорожчання на 1 рік
- Усі комунікації введені в будинок
- Таунхаус здається у стані від будівельників
- Можливість проведення ремонту за додаткову плату (фото додається)
- Права власності передаються після закінчення будівництва (термін будівництва - 8-12 місяців)
Не пропустіть шанс стати власником цього чудового таунхауса у зручному та перспективному районі Одеси!
Зв'яжіться з нами для отримання додаткової інформації та організації перегляду.
Отримати консультацію