Майбутнє має адресу
77000 у.о. |
|||
|---|---|---|---|
| ID | 1058 | ||
| Розташування | Степний пров., Одеська обл. | ||
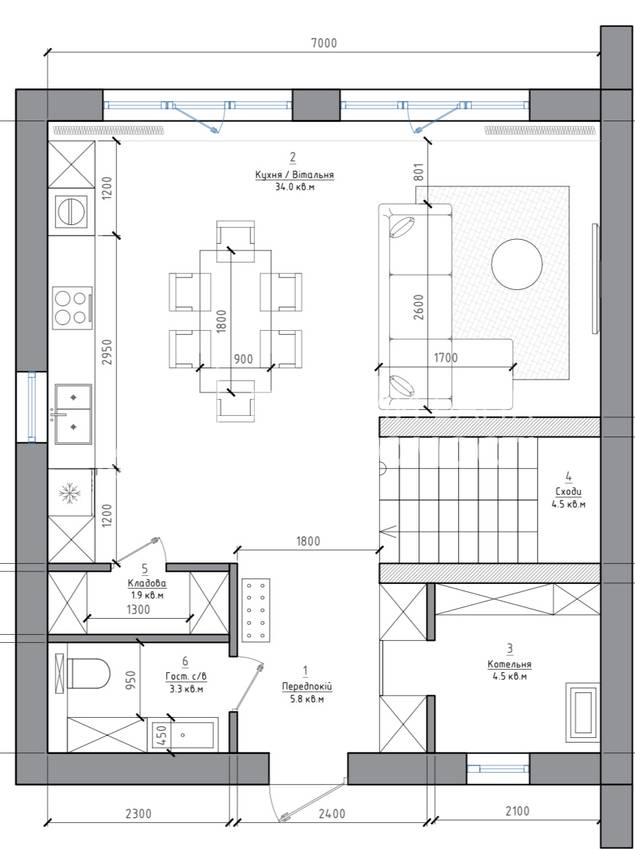
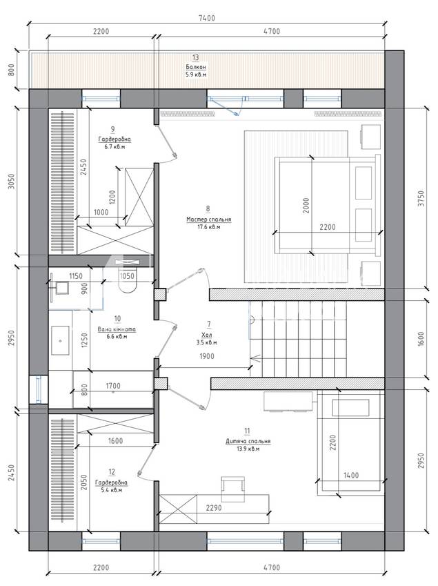
| Загальна, кв.м. | 109.00 | ||
| Жила/Кухня, кв.м. | 43.70/35.00 | ||
| Поверхів | 2 | ||
| Висота стелі, м. | 3.20 | ||
| Стан нерухомості | від будівельників | ||
| Опалення | АОГВ | ||
У продажу безпосередньо від забудовника без додаткових витрат будинки у Бурлачій Балці.
Орієнтир - Совіньйон, Зелений Гай. До моря на авто 7-10 хвилин.
У проекті 4 будинки - дуплекс/таунхаус, 1 та 2 черга будівництва.
Зараз 1 черга на етапі 2 поверхи.
Площа дуплексу: 109 м. кв.
Ділянка: 2 сотки.
Фундамент – монолітна плита.
Стіни – газоблок 400 мм.
Монолітне перекриття між поверхами.
Плоский експлуатований дах.
Система зливу у каналізацію.
Комунікації заведено до будинку:
Електрика 380V (лічильник день/ніч)
Вода (лічильник віддаленої передачі показників)
Каналізація (септик)
Оптико-волоконний інтернет
Вентиляція
Каналізація з водопостачанням розведена по будинку та на другий поверх.
Вікна – енергозберігаючі 2х камерні.
Фасад декорований гнучкою керамікою.
Паркан фундаментальний - облицювальний кирпич + двосторонні жалюзі.
Відкатні ворота на електриці.
У дворі паркування на 2 авто, госп. зона з інвентарною коморою, тераса заднього двору 23м.кв.
При 100% оплаті до 31.05 - знижка -5000 у.о.
Розстрочка без подорожчання, 1 внесок від 30%
Отримати консультацію