a

Майбутнє має адресу

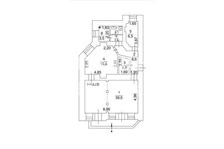
Комерційне приміщення 85.00 кв.м.

169000 у.о.

ID 781
Розташування Канатна вул., Приморський
Загальна, кв.м. 85.00
Стан нерухомості з ремонтом
Поверх 1 /4
Висота стелі, м. 3.00

У продажу комерційне приміщення 85 кв. м, нежитловий фонд, 1 поверх 4-поверхової будівлі
Фасад, три фасадні вікна, 2 фасадні входи. Також є вхід з арки (чорний)
20 кВт, 3 фази, промислова система вентиляції з виведенням на дах будівлі
Індивідуальне введення води
Опалення автономне, електрокотел Vaillant
Бойлер на 80 л, накопичувальний бак 250 л, гідрофор
Два санвузли
Приміщення розділене на два, обидва з ремонтом та окремими входами, зараз працює орендар

Телефонуйте, організуємо оперативний показ!

 

(067) 522-58-95

Отримати консультацію

(067) 522-58-95