a

Майбутнє має адресу

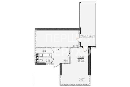
Комерційне приміщення 75.28 кв.м.

188200 у.о.

ID 213
Розташування БЦ Кадор 62 Перлина, Приморський
Загальна, кв.м. 75.28
Стан нерухомості від будівельників
Поверх 3 /24
Висота стелі, м. 3.00

Бізнес-центр Кадорр (62 Перлина) на вул.

Перший сучасний простір, який органічно поєднує бізнес з усім необхідним для повноцінного життя.
Тут можна планувати заходи в конференц-залах із можливістю замовлення послуг кейтерингу, повечеряти з партнерами в одному з ресторанів або обмінятися новинами з колегами у кафе чи лобі-барі.
Офісні приміщення можна облаштувати як Open Space або реалізувати індивідуальне планування. У бізнес-центрі передбачено систему пожежного оповіщення, автономну систему опалення, IP-телефонію та інші незамінні зручності для комфортної роботи.
Тут можна ефективно вести бізнес та будувати кар'єру, не жертвуючи особистим часом. Адже у будівлі також розташувалися фітнес-центр, дитячий садок та відділення банку.

Бізнес-центр Кадорр - це відмінне рішення для тих, хто прагне високих результатів як у бізнесі, так і в житті!

Продаж комерційного приміщення з ремонтом від забудовника! Вигідна розстрочка!

ТЕЛЕФОНУЙТЕ І ЗАПИСУЙТЕСЯ НА ПЕРЕГЛЯД!!

(067) 476-52-14

Отримати консультацію

(067) 476-52-14