a

Майбутнє має адресу

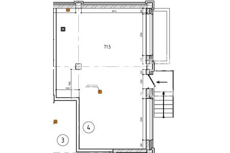
Комерційне приміщення 60.00 кв.м.

85000 у.о.

ID 1472
Розташування Педагогічна вул., Приморський
Загальна, кв.м. 60.00
Стан нерухомості готовий бізнес
Поверх 1 /1
Висота стелі, м. 4.00

В продажі приміщення з ремонтом в клубному будинку Граф на Педагогічній 1й поверх.

Жити за два кроки від епіцентру літнього життя Одеси Аркадії і не втомлюватися від неї — напевно, нонсенс. Але в житловому комплексі Граф на Педагогічній все інакше.

Аркадійська алея з її ресторанами, магазинами та аквапарком Hawaii 20 хвилин пішки.

Якщо вам більше до вподоби спорт, то на авто від комплексу до Траси Здоров'я — близько 11 хвилин за кермом.

За продуктами можна сходити в найближчі мережеві магазини, наприклад, Копійку або Таврію В. А освіжити свій образ — один із численних салонів краси поблизу.

Також у пішій доступності знаходиться 6 дитячих садків, 1 міська школа та 1 ліцей. А по найближчій великій дорозі — Фонтанській — можна дістатися до центру міста за 16 хвилин.

 

(067) 522-58-95

Отримати консультацію

(067) 522-58-95