a

Майбутнє має адресу

Комерційне приміщення 720.00 кв.м.

850000 у.о.

Подивитися детальну інформацію про ЖК Малинки
ID 1420
Розташування Малиновського Маршала вул. (Олексія Вадатурського вул.), Малиновський
Загальна, кв.м. 720.00
Стан нерухомості з ремонтом
Поверх 1 /12
Висота стелі, м. 2.70

Відеоогляд

ПРОПОНУЄТЬСЯ ДО ПРОДАЖУ!

Приміщення готове для використання під ваш бізнес!
Площа 720 кв. м. плюс свій майданчик 350 м кв.

Ідеально підійде для: дитячого садка, школи, танці, медичний центр, курси, що розвивають і тд.
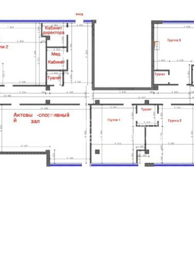
Планування передбачає поділ всього об'єкта на дві частини. З окремими входами. І поділ комунікацій. Усього на об'єкті 5 входів!
Приміщення із ремонтом.
Особливості:
Приторно-витяжна вентиляція з рекуперацією! Забезпечить взимку та влітку комфортний клімат. Своя виділена вентиляційна шахта.
Своя кухня та ліфт. Технічне приміщення у паркінгу.
Чудовий ремонт з якісних матеріалів
Зручне розташування
Просторі кабінети
Відмінне освітлення
Підходить для різних видів діяльності
Перший поверх
Потужність 60 кВт з можливістю збільшення.
Кухня. Кухонний ліфт із тих приміщення.
Є парковка та бомбосховища (паркінг). Є виділене приміщення у паркунку, автономне (вентиляція, світло, вода, туалет для використання під укриття).
Виділений дитячий майданчик 350 кв.м.
Власна газова котельня на дитячому майданчику – 70кВт
Їдальня, медичний кабінет, кабінет директора, учительська, пральна, кімната для персоналу.
5 санвузлів. Душова. 6 дорослих та 8 дитячих унітазів.
У приміщенні встановлено систему пожежної сигналізації для дитячих навчальних закладів. Є проект.
32 відеокамери у приміщенні та по периметру будівлі та дитячого майданчика.
Професійна система фільтрації води, розрахована на споживання води за нормами дитячого садка/школи.
Можна розділити на 2-3 частини з окремими входами.

Можливий заїзд як із вулиці М. Малиновського, і з Цегляно-заводської чи Кедрового провулка. Чудова транспортна розв'язка. Через дорогу знаходиться Гімназія №5 та ЗОШ №64.

(067) 569-46-14

Отримати консультацію

(067) 569-46-14