Майбутнє має адресу
518925 у.о. |
|||
|---|---|---|---|
| Подивитися детальну інформацію про ЖК Французький, 29б | |||
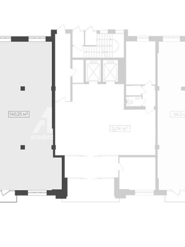
| ID | 1353 | ||
| Розташування | Французький бульв., Приморський | ||
| Загальна, кв.м. | 140.25 | ||
| Стан нерухомості | від будівельників | ||
| Поверх | 1 /10 | ||
| Висота стелі, м. | 4.20 | ||
Будинки Каркашадзе на Французькому бульварі, 29
Даний проект для компанії особливий, він увібрав у себе більш ніж 20-річний досвід компанії та сучасні технології будівництва.
Цей проект повністю підтверджує рівень елітної нерухомості.
У цьому житловому будинку поєднуються естетика, натхненна архітектурою одеської класики, традиційна якість Будинків Каркашадзе, прекрасне розташування та паркова прибудинкова територія.
На першому поверсі розміщено комерційні приміщення.
Панорпмне скління, оздоблення преміальними натуральними матеріалами, можливість оформлення вхідної групи на фасаді – все це робить комерційну нерухомість Будинків Каркашадзе особливо привабливою для розміщення офісу, бутіка чи відділення банку.
У продажу залишилось одне фасадне комерційне приміщення!
Структура запропонованого приміщення дозволяє планувати простір майбутньої комерції різної конфігурації.
Гостьовий паркінг перед фасадом. Можливість розміщення вивісок.
Можлива розстрочка на 1,5 роки, мінімальний внесок – 50%.
Запрошуємо на перегляд!
Отримати консультацію