a

Майбутнє має адресу

Комерційне приміщення 6700.00 кв.м.

2345000 у.о.

ID 1036
Розташування Головатого Атамана вул., Суворовський
Загальна, кв.м. 6700.00
Стан нерухомості готовий бізнес
Поверх 6 /6
Висота стелі, м. 5.00

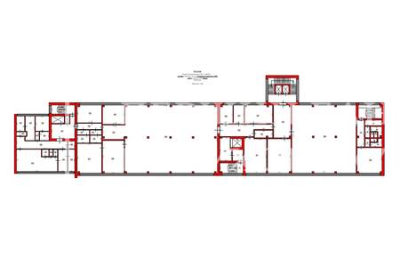
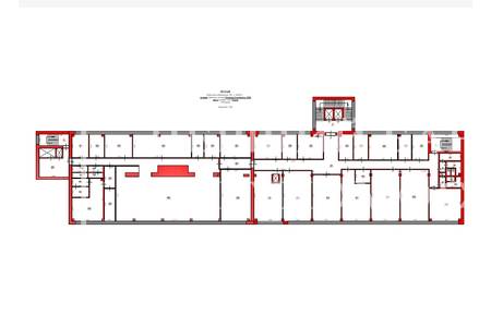
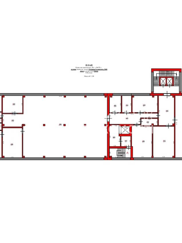
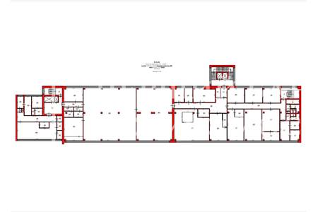
Окрема шестиповерхова будівля загальною площею 6700 м2, висота стель 5 метрів, 4 введення електрики по 350 кіловат, три пасажирських ліфти, один вантажний.

Два окремі входи, заїзд на територію, що охороняється, з вулиці Атомана Головатого. Конструкція будівлі розрахована на встановлення обладнання з розрахунку 5тон на 1м2.

Виробничі площі були переплановані на офісні, складські приміщення. На шостому поверсі планувався гуртожиток для робочого персоналу, зараз стан від будівельника.

Будівля у хорошому стані, панорамне скління, відмінна локація, гарна транспортна розв'язка. Рідкісна пропозиція на ринку нерухомості.

(067) 569-46-14

Отримати консультацію

(067) 569-46-14