a

Майбутнє має адресу

ЖК Корфу

від 1400 у.о./кв.м.

Перший Банк Нерухомості є офіційним партнером будівельної компанії. Об'єкти продаються без будь-якої комісії.

Є здані секції

Строк здачі

2 кв. 2020 р.

Варіантів квартир у цьому комплексі: 3. → Подивитись усі
Район Приморський
Забудовник Гефест
Поверховість 17 пов.
Будинок зданий
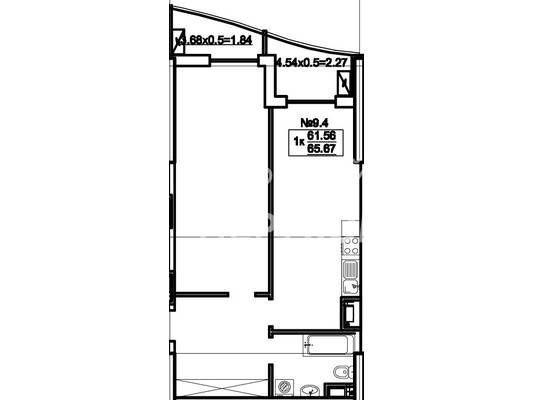
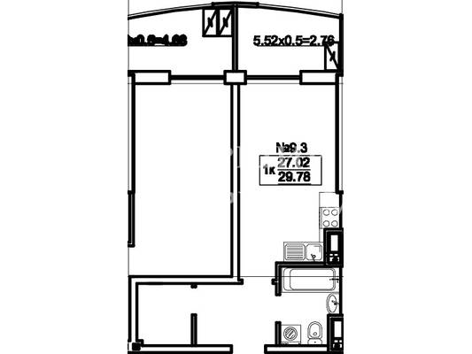
1 кімнатні від 30 до 66 м2
2 кімнатні від 67 до 85 м2
3+ кімнатні від 97 до 97 м2
Замовити прорахунок вартості квартири чи комерції

Опис об’єкту

Квартири з видом на море, в елітному новобудові – це не мрія, це – реальність! Представляємо новий житловий комплекс "Корфу", який відповідає всім вимогам високого статусу власника. Він розташувався на 10-й станції Великого Фонтану в Кордонному провулку за двісті метрів від берега моря. Забудовник: СК "Гефест" - будівельна компанія з великим досвідом роботи та величезним кредитом довіри з боку мешканців нашого міста. Секрет її успіху – відданість справі, професіоналізм, любов до втілених проектів, повага до суспільства та оточення.

ЖК "Корфу" буде зданий в експлуатацію в IV кварталі 2018, але вже зараз, усім охочим купити квартиру біля моря, ми рекомендуємо поквапитися – таких пропозицій на ринку не буває багато! У продажу доступні студійні та інші варіанти квартир з видом на море та місто. Ви отримуєте елітне житло в парковій зоні міста, осторонь його галасливих доріг, поряд з берегом моря та його чистим морським повітрям.

Архітектурно-планувальні рішення

ЖК "Корфу" являє собою дві дзеркальні 17-ти поверхові секції з технічним поверхом та трирівневим автопаркінгом у підземній частині будівлі. На першому поверсі розташовані офісні та комерційні площі. На технічному поверсі – технологічне обладнання житлового комплексу. Як конструктивна схема прийнята монолітно-каркасна технологія будівництва.

  • Каркас будинків – монолітний залізобетонний.

  • Фундамент - пальового типу з монолітним залізобетонним ростверком.

  • Перекриття – монолітні залізобетонні.

  • Покрівля – комбінована.

  • Зовнішні, внутрішні стіни та перегородки – імпортний газобетон.

  • Висота поверху 3.0м.

Інженерне забезпечення

  • Скління. На вікнах, балконах та лоджіях – алюмінієві енергозберігаючі склопакети з двоконтурним замиканням.

  • Житловий комплекс Корфу оснащений безшумними швидкісними ліфтами нового покоління зі збільшеною вантажопідйомністю компанії OTIS.

  • Опалення. Передбачено індивідуальну газову котельню дахового типу.

  • Квартири обладнані електричними плитами.

  • Електропостачання, газопостачання, водопровід та каналізація – комплекс підключений до міських інженерних комунікацій.

Планування квартир та технічний стан

У продажу є 135 квартир різних планувальних рішень: квартири-студії, вільні планування, традиційні апартаменти. Сучасне планування включає: великий хол, простору кухню, зручний санвузол, великий за площею балкон або лоджію.

Технічний стан житла – квартири від будівельників. На момент передачі власнику технічний стан квартир відповідатиме наступному:

  • Ремонт парадної, сходових маршів та холу - "під ключ".

  • Вхідні двері квартири – металеві з облицюванням твердими породами дерева.

  • Інженерні комунікації – заведені у квартиру, групи обліку встановлені на поверсі у спеціально передбачених місцях.

  • У квартиру заведено кабельне TV та Інтернет.

  • Підлога - стяжка.

  • Опалення – виконано "під ключ".

Інфраструктура

Прибудинкова територія ЖК "Корфу" – закритого типу. Вона передбачає ігрові майданчики для дітей, зелені зони відпочинку, широкі тротуари, сучасне освітлення та цілодобову охорону з відеоспостереженням. У підземній частині розташований трирівневий паркінг, а поряд з будинком – гостьова парковка.

Розвинена інфраструктура 10-ї станції Великого Фонтану запропонує:

  • пляжі, яхт-клуб, фітнес-центр, ресторани, центр відпочинку та краси – поряд з будинком;

  • супермаркет "Обжора", відділення пошти, банку - у кроковій доступності;

  • дитячий садок-ясла, школи та вищі навчальні заклади - 8 ст. Б.Фонтану;

  • медичні установи, ринок – 7 ст. Б. Фонтану.

Поруч із будинком розташований чудовий парк Павла Шклярука, де молоді батьки та люди старшого покоління можуть приємно провести час. Транспортне сполучення з іншими районами міста – на високому рівні. Найближчі зупинки громадського транспорту за 2 хвилини ходьби від будинку.

Автономія

Генератор

Аварійне освітлення

Автономне опалення

Безперебійна робота ліфтів

(067) 199-97-86

Отримати консультацію

Подивитися квартири в цьому комплексі

Подивитись усі

Акції та спеціальні пропозиції на усі житлові комплекси

Подивитись усі акційні пропозиції
(067) 199-97-86